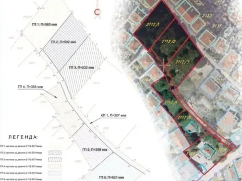
Na prodaju građevnisko zemljište površine 3.58 i 5.65 ari u Užicu, 700 metara od centralnog gradskog trga. Vlasnik 1/1 .
Plac
923m²
N/A
N/A
Užice
Užice, Srbija
Na upit


Cena po m²: 270.86 €
Učešće 50,000 €
Napomena:
Ova kalkulacija je informativna. Stvarni uslovi kredita mogu varirati u zavisnosti od banke, kreditnog rejtinga i drugih faktora. Konsultujte se sa bankom za tačne uslove.
Milos
Kremna
Sevojno
Kremna
Užice
Gluvaći
Krčagovo
Terazije
Milos Milos