84,240 €
84,240 € (1,359 €/m²)
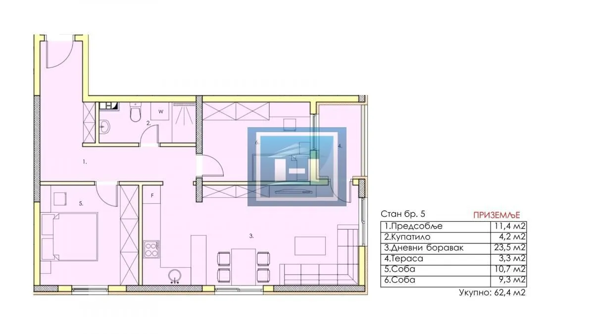
62 m²
3 Soba

Prodaja, trosoban stan, 62m², Centar, Jagodina

Centar, Jagodina Srbija

Opis nekretnine

Započeta je izgradnja nove stambene zgrade koja objedinjuje moderan dizajn, funkcionalnost i udobnost savremenog života. U ponudi su stanovi različitih struktura i kvadratura – od 31,6m² do 67,4m², idealni kako za mlade parove i pojedince, tako i za porodice koje žele mir, sigurnost i kvalitetan dom. Cena: 1.350 €/m² sa PDV-om Parking mesto uključeno u cenu! Mogućnost kupovine garažnog mesta u podrumu zgrade! KVALITET I SIGURNOST KOJI SE OSEĆAJU Gradnja se izvodi po najvišim standardima: • Termo blok + stiropor izolacija 10cm – odlična toplotna i zvučna zaštita • Podno grejanje – keramika na podovima za savršen komfor • Grejanje na gas za stanove preko 50m², kotao na struju za manje stanove • Ugrađen vodomer i visoka energetska efikasnost • Klima uređaj u svakom stanu • Lift u zgradi • PVC stolarija vrhunskog kvaliteta i alu roletne sa elektro podizačima LOKACIJA KOJA NUDI MIR I BLIZINU SVEGA Zgrada se nalazi u mirnom delu grada, savršenom za porodičan život, a ipak na samo 500 metara od centra. Bolnica, škole, marketi, apoteke, pošta i svi bitni sadržaji nalaze se u neposrednoj blizini – sve što vam je potrebno, dostupno je pešice. ZAŠTO OVAJ PROJEKAT? ✔ Pouzdan investitor sa iskustvom ✔ Izuzetna energetska efikasnost i niski troškovi održavanja ✔ Parking mesto obezbeđeno uz svaki stan, osim za garsonjere ✔ Mogućnost kupovine garaže ✔ Savršena kombinacija kvaliteta, lokacije i cene ✔ Odlična investicija – i za život i za izdavanje Useljenje po završetku radova, a rezervacije su već u toku! Ne čekajte – rezervišite svoj novi dom na vreme! 064/8-/8-/8-222-441

Detalji o nekretnini

ID oglasa
484566
Objavljeno
24.10.2025
Tip nekretnine

Stan

Kvadratura

62m²

Sobe

3

Kupatila

N/A

Lokacija

Centar

Centar, Jagodina

Cena

84,240 €

1,359 € po m²

Kreditni kalkulator

Cena po m²: 1358.71 €

10%50%

Učešće 16,848 €

1%8%
5 god35 god
Mjesečna rata
303 €

360 rata ukupno

Iznos kredita
67,392 €
Učešće
16,848 €
Ukupna kamata
41,551 €
Ukupno plaćanje
108,943 €

Napomena:

Ova kalkulacija je informativna. Stvarni uslovi kredita mogu varirati u zavisnosti od banke, kreditnog rejtinga i drugih faktora. Konsultujte se sa bankom za tačne uslove.

Prosečne cene trosobnih stanova - Centar

Centar
Jagodina

Cena ove nekretnine je 0% viša od prosečne cene trosobnog stana na lokaciji Jagodina

Prosečna cena: 0.00 €/m²

Ova nekretnina je 0% veća od prosečne veličine trosobnog stana na lokaciji Jagodina

Prosečna veličina: 0 m²

1,456 €
Prosečna godišnja cena
+24%
Trend cena (godišnje)
15
Dana na tržištu

regulatorne informacije

Agencija (posrednik)

Heroldo Nekretnine

Registarski broj

-

Lokacija

Jagodina

Centar

Kvadratura

62m²

Struktura

3 Sobe

Tip nekretnine

Stan

Ove informacije su obavezne prema Zakonu o posredovanju u prometu i zakupu nepokretnosti Crne Gore. Svi posrednici moraju biti upisani u Registar posrednika koji vodi nadležno ministarstvo.

HN

Heroldo Nekretnine

Slične nekretnine

Stan in Centar

Prodaja, dvosoban stan, 57m², Centar, Jagodina

52,000 €

Centar

2 sobe 57
Prodaja, dvosoban stan, 57m², Centar, Jagodina
Stan in Centar

Prodaja, dvosoban stan, 59m², Centar, Jagodina

80,595 €

Centar

2 sobe 59
Prodaja, dvosoban stan, 59m², Centar, Jagodina
Stan in Centar

Prodaja, jednosoban stan, 49m², Centar, Jagodina

66,420 €

Centar

1 soba 49
Prodaja, jednosoban stan, 49m², Centar, Jagodina
Stan in Centar

Prodaja, trosoban stan, 62m², Centar, Jagodina

84,240 €

Centar

3 sobe 62
Prodaja, trosoban stan, 62m², Centar, Jagodina
Stan in Centar

Prodaja, garsonjera, 31m², Centar, Jagodina

42,660 €

Centar

0 soba 31
Prodaja, garsonjera, 31m², Centar, Jagodina
Stan in Centar

Prodaja, trosoban stan, 62m², Centar, Jagodina

84,240 €

Centar

3 sobe 62
Prodaja, trosoban stan, 62m², Centar, Jagodina
Stan in Centar

Prodaja, jednosoban stan, 49m², Centar, Jagodina

66,420 €

Centar

1 soba 49
Prodaja, jednosoban stan, 49m², Centar, Jagodina
Stan in Centar

Prodaja, dvosoban stan, 59m², Centar, Jagodina

80,595 €

Centar

2 sobe 59
Prodaja, dvosoban stan, 59m², Centar, Jagodina
Stan in Centar

Prodaja, jednosoban stan, 41m², Centar, Jagodina

55,350 €

Centar

1 soba 41
Prodaja, jednosoban stan, 41m², Centar, Jagodina
Stan in Centar

Prodaja, jednosoban stan, 51m², Centar, Jagodina

68,850 €

Centar

1 soba 51
Prodaja, jednosoban stan, 51m², Centar, Jagodina

Prodaja stanova

Prodaja kuća

Izdavanje stanova

Izdavanje kuća