Novi stambeni objekat na Podbari – prodaja stanova u izgradnji
Predstavljamo vam novu stambenu zgradu u izgradnji, smeštenu u atraktivnom delu Podbare – mirnoj, urbanoj zoni Novog Sada sa odličnom infrastrukturom i blizinom centra grada.
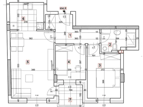
Predmet prodaje je dvoiposoban stan posebne oznake 6, površine 57m2, na prvom spratu.
Zgrada se sastoji isključivo od stambenih jedinica (ukupno 26 stanova), raspoređenih na prizemlje, četiri sprata i potkrovlje uz suterensku garažu. U ponudi su stanovi sa jednom ili dve spavaće sobe, različitih kvadratura i rasporeda, idealni kako za porodično stanovanje, tako i za investiciju u rentiranje.
Mogućnost kupovine putem stambenog kredita, kao i pravo na povrat PDV-a u iznosu od 10% za kupce prvog stana.
Zgrada je projektovana da odgovori potrebama savremenog gradskog života — bilo da kupujete prvi dom, menjate stan ili tražite sigurnu investiciju.
U prikazanu kupoprodajnu cenu uračunat je i PDV kao i agencijska provizija. Bez poreza na prenos apsolutnih prava (kupovina od investitora).
Stan
57m²
1
1
Podbara
Podbara, Novi Sad Sve Podlokacije
159,270 €
2,794 € po m²
Agencija
PS Properties Novi Sad

Cena po m²: 2794.21 €
Učešće 31,854 €
Napomena:
Ova kalkulacija je informativna. Stvarni uslovi kredita mogu varirati u zavisnosti od banke, kreditnog rejtinga i drugih faktora. Konsultujte se sa bankom za tačne uslove.
Cena ove nekretnine je 4.2% niža od prosečne cene jednosobnog stana na lokaciji Podbara
Prosečna cena: 2916.84 €/m²
Ova nekretnina je 50.75% veća od prosečne veličine jednosobnog stana na lokaciji Podbara
Prosečna veličina: 38 m²
Agencija (posrednik)
PS Properties Novi Sad
Registarski broj
1960
Lokacija
Novi Sad Sve Podlokacije
Podbara
Kvadratura
57m²
Struktura
1 Sobe
Tip nekretnine
Stan
Ove informacije su obavezne prema Zakonu o posredovanju u prometu i zakupu nepokretnosti Crne Gore. Svi posrednici moraju biti upisani u Registar posrednika koji vodi nadležno ministarstvo.
Podbara
Podbara
Podbara
Podbara
Podbara
Podbara
Podbara
Podbara
Podbara
Podbara