Stan
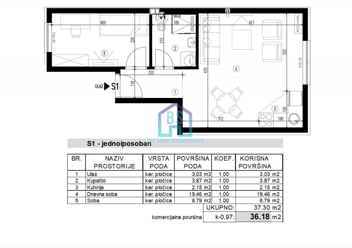
36m²
1
0
Adice
Adice, Novi Sad Sve Podlokacije
81,980 €
2,277 € po m²
Agencija
Be Safe NekretnineCena po m²: 2277.22 €
Učešće 16,396 €
Da li ispunjavate uslove za ovaj kredit?
Saznajte za manje od 1 minut — besplatno i bez obaveza

Napomena: Ova kalkulacija je informativna. Stvarni uslovi kredita mogu varirati u zavisnosti od banke, kreditnog rejtinga i drugih faktora. Konsultujte se sa bankom za tačne uslove.
Cena ove nekretnine je 13.41% viša od prosečne cene jednosobnog stana na lokaciji Adice
Prosečna cena: 2007.93 €/m²
Ova nekretnina je 0.4% manja od prosečne veličine jednosobnog stana na lokaciji Adice
Prosečna veličina: 36 m²
Agencija (posrednik)
Be Safe Nekretnine
Registarski broj
-
Lokacija
Novi Sad Sve Podlokacije
Adice
Kvadratura
36m²
Struktura
1 Sobe
Tip nekretnine
Stan
Ove informacije su obavezne prema Zakonu o posredovanju u prometu i zakupu nepokretnosti Crne Gore. Svi posrednici moraju biti upisani u Registar posrednika koji vodi nadležno ministarstvo.
Posjedujte ovu nekretninu već od
Fiksne kamate od: 4%
Da li ispunjavate uslove za ovaj kredit?
Saznajte za manje od 1 minut — besplatno i bez obaveza
U saradnji sa

Adice
Adice
Adice
Adice
Adice
Adice
Adice
Adice
Adice
Adice