Ramonda Residence je savremen stambeno‑poslovni objekat na Somborskom bulevaru, zamišljen kao nova generacija gradskog stanovanja. Arhitektura je inspirisana prirodnim, skulpturalnim formama, sa naglaskom na dugotrajnost, funkcionalnost i visok standard izvedbe.
Smešten u delu Severnog Telepa, objekat kombinuje mir porodičnog naselja i dobru povezanost zahvaljujući blizini Bulevara patrijarha Pavla i Futoške ulice. U neposrednoj blizini nalaze se škole, zdravstvene ustanove, prodavnice, restorani i druge usluge, što ovu lokaciju čini pogodnom za porodičan život i interesantnom za ulaganje.
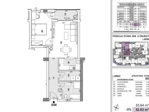
U ponudi je dvosoban stan broj 8 na 1. spratu zgrade sa 8 spratova, sa projektovanom površinom 52.03 m². Stan se izdvaja promišljenim i praktičnim rasporedom koji eliminiše izgubljene kvadrate, jasno odvaja dnevni i noćni deo i omogućava obilje prirodne svetlosti. Dodatna prostorija predviđena je kao vešernica, što povećava funkcionalnost i olakšava svakodnevno održavanje domaćinstva. Stan je idealan za udoban život, ali i kao atraktivna investicija u perspektivnom delu grada.
Objekat će biti izveden prema savremenim evropskim standardima i opremljen sledećim elementima: energetski pasoš, kvalitetna stolarija, prvoklasna keramika i sanitarije, sigurnosna vrata i lift. Garažna mesta u suterenu dostupna su po ceni 20.000 € + PDV.
Planirani završetak radova: decembar 2027.
Popust za keš kupce: 100 €/m².
Za sve informacije i razgledanje stana:
Telefon: 060/5488‑604 (Viber, WhatsApp, Telegram)
E‑mail: office@pspropertiesns.com
Stan
52m²
1
1
Telep
Telep, Novi Sad Sve Podlokacije
165,220 €
3,177 € po m²
Agencija
PS Properties Novi SadCena po m²: 3177.31 €
Učešće 33,044 €
Da li ispunjavate uslove za ovaj kredit?
Saznajte za manje od 1 minut — besplatno i bez obaveza

Napomena: Ova kalkulacija je informativna. Stvarni uslovi kredita mogu varirati u zavisnosti od banke, kreditnog rejtinga i drugih faktora. Konsultujte se sa bankom za tačne uslove.
Cena ove nekretnine je 20.69% viša od prosečne cene jednosobnog stana na lokaciji Telep
Prosečna cena: 2632.55 €/m²
Ova nekretnina je 33.37% veća od prosečne veličine jednosobnog stana na lokaciji Telep
Prosečna veličina: 39 m²
Agencija (posrednik)
PS Properties Novi Sad
Registarski broj
1960
Lokacija
Novi Sad Sve Podlokacije
Telep
Kvadratura
52m²
Struktura
1 Sobe
Tip nekretnine
Stan
Ove informacije su obavezne prema Zakonu o posredovanju u prometu i zakupu nepokretnosti Crne Gore. Svi posrednici moraju biti upisani u Registar posrednika koji vodi nadležno ministarstvo.
Posjedujte ovu nekretninu već od
Fiksne kamate od: 4%
Da li ispunjavate uslove za ovaj kredit?
Saznajte za manje od 1 minut — besplatno i bez obaveza
U saradnji sa

Telep
Telep
Telep
Telep
Telep
Telep
Telep
Telep
Telep
Telep