Ramonda Residence je moderan stambeno‑poslovni objekat na Somborskom bulevaru, projektovan kao nova generacija urbanog stanovanja sa arhitekturom inspirisanom prirodnim, skulpturalnim linijama i fokusom na dugotrajnost, funkcionalnost i visok kvalitet izvedbe.
Objekat se nalazi u delu Severnog Telepa, jedne od najperspektivnijih i najtraženijih zona Novog Sada. Mirno porodično okruženje kombinuje se sa odličnom povezanosti zahvaljujući blizini Bulevara patrijarha Pavla i Futoške ulice. U neposrednoj blizini su škole, zdravstvene ustanove, prodavnice, restorani i druge usluge, što lokaciju čini pogodnom za porodičan život i atraktivnom za investitore.
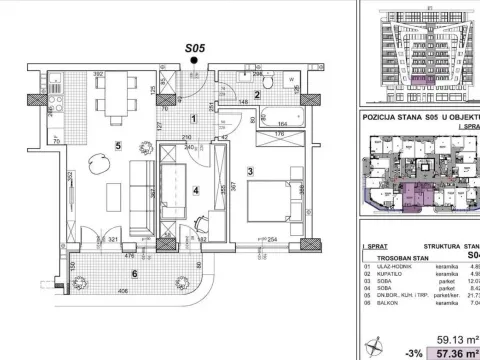
U ponudi je jednoiposoban stan broj 5 na 1. spratu zgrade od 8 spratova, sa projektovanom površinom 57.36 m². Stan ima promišljen raspored bez izgubljenih kvadrata, jasno odvojen dnevni i noćni deo i obilje prirodne svetlosti. Pogodan je i za svakodnevni život i kao dugoročna investicija u rastućem delu grada.
Objekat će biti izveden prema savremenim evropskim standardima gradnje i opremljen sledećim elementima: energetski pasoš, kvalitetna stolarija, prvoklasna keramika i sanitarije, sigurnosna vrata i lift. Moguća su garažna mesta u suterenu po ceni 20.000 € + PDV.
Planirani završetak radova: decembar 2027.
Popust za keš kupce: 100 €/m².
Za dodatne informacije o projektu i dostupnim stanovima:
Telefon: 060/5488‑604 (Viber, WhatsApp, Telegram)
E‑mail: office@pspropertiesns.com
Stan
57m²
1
1
Telep
Telep, Novi Sad Sve Podlokacije
175,470 €
3,078 € po m²
Agencija
PS Properties Novi SadCena po m²: 3078.42 €
Učešće 35,094 €
Da li ispunjavate uslove za ovaj kredit?
Saznajte za manje od 1 minut — besplatno i bez obaveza

Napomena: Ova kalkulacija je informativna. Stvarni uslovi kredita mogu varirati u zavisnosti od banke, kreditnog rejtinga i drugih faktora. Konsultujte se sa bankom za tačne uslove.
Cena ove nekretnine je 16.94% viša od prosečne cene jednosobnog stana na lokaciji Telep
Prosečna cena: 2632.55 €/m²
Ova nekretnina je 46.19% veća od prosečne veličine jednosobnog stana na lokaciji Telep
Prosečna veličina: 39 m²
Agencija (posrednik)
PS Properties Novi Sad
Registarski broj
1960
Lokacija
Novi Sad Sve Podlokacije
Telep
Kvadratura
57m²
Struktura
1 Sobe
Tip nekretnine
Stan
Ove informacije su obavezne prema Zakonu o posredovanju u prometu i zakupu nepokretnosti Crne Gore. Svi posrednici moraju biti upisani u Registar posrednika koji vodi nadležno ministarstvo.
Posjedujte ovu nekretninu već od
Fiksne kamate od: 4%
Da li ispunjavate uslove za ovaj kredit?
Saznajte za manje od 1 minut — besplatno i bez obaveza
U saradnji sa

Telep
Telep
Telep
Telep
Telep
Telep
Telep
Telep
Telep
Telep