
220,800 €
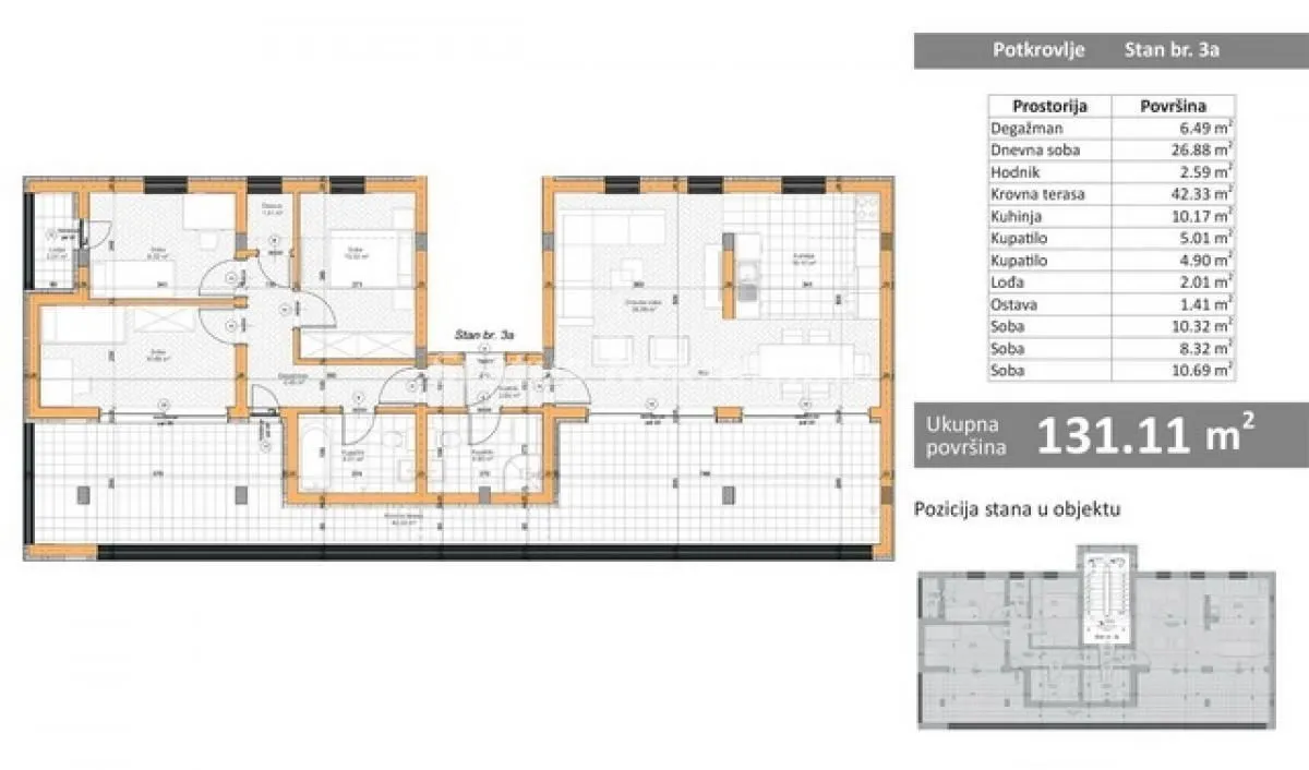
Prodaja, četvorosoban stan, 134m², Veternik, Novi Sad Sve Podlokacije
*NAŠA PREPORUKA*...Prodajemo u Veterniku Novogradnja Useljiv Četvorosoban stan 134 m2 na POGODNOJ LOKACIJI...Stan se nalazi na Drugom spratu zgrade, ima Tri odvojene spavaće sobe i Fantastičnu Lepu Ve


















