Na upit
  • Prodaja, jednosoban stan, 62m², Dobrota, Kotor - image 1
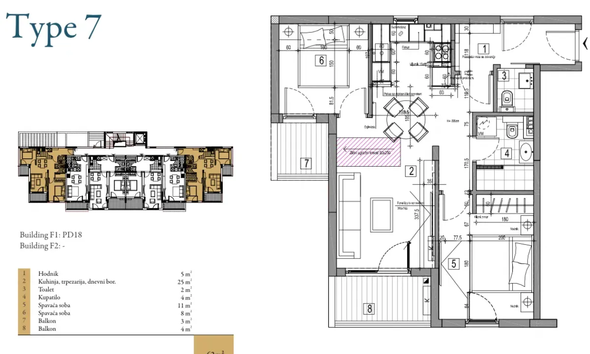
  • Prodaja, jednosoban stan, 62m², Dobrota, Kotor - image 2
Na upit
62 m²
1 Soba

Prodaja, jednosoban stan, 62m², Dobrota, Kotor

Dobrota, Kotor Crna Gora

Opis nekretnine

IDD2329 The building housing this apartment boasts luxurious amenities to ensure a high level of comfort and security. Armored front doors provide added safety, while granite tiles adorn the corridors and stairs. Wooden-aluminum windows, equipped with remote-controlled shutters, offer both elegance and convenience. Interior carpentry crafted from solid wood adds a touch of sophistication.
Porcelain ceramics grace the living room, bathroom, hallway, and kitchen, while floor heating ensures warmth and comfort in these areas. Bedrooms feature stylish parquet flooring, complementing the overall aesthetic. Air conditioning units in every room maintain a pleasant indoor environment throughout the year. Additionally, each apartment is equipped with a fire alarm system and video intercoms for added safety and convenience. The premises are further secured with 24-hour video surveillance and physical security measures.
For more information, contact us at: https://www.searealty.me/en/contact
—-
RU:
Здание, в котором находится эта квартира, имеет роскошные удобства для обеспечения высокого уровня комфорта и безопасности. Бронированные входные двери обеспечивают дополнительную безопасность, а гранитные плиты украшают коридоры и лестницы. Деревянно-алюминиевые окна с управляемыми рольставнями предлагают и элегантность, и удобство. Внутренняя столярка из массивного дерева добавляет штрих изысканности.
Фарфоровая керамика украшает гостиную, ванную комнату, прихожую и кухню, а напольное отопление обеспечивает тепло и комфорт в этих помещениях. Спальни украшены стильным паркетом, дополняя общий эстетический вид. Кондиционеры в каждой комнате поддерживают приятную внутреннюю атмосферу в течение всего года. Кроме того, каждая квартира оборудована пожарной сигнализацией и видеодомофонами для дополнительной безопасности и удобства. Территория дополнительно обеспечена видеонаблюдением и физическими мерами безопасности круглосуточно.
Для получения дополнительной информации свяжитесь с нами по адресу: https://www.searealty.me/ru/sviazatsya
—-
TR:
Bu daireyi barındıran bina, yüksek seviyede konfor ve güvenlik sağlamak için lüks olanaklara sahiptir. Zırhlı ön kapılar ek güvenlik sağlarken, granit karo koridorları ve merdivenleri süsler. Uzaktan kumandalı panjurlarla donatılmış ahşap-alüminyum pencereler, hem zarafet hem de kolaylık sunar. Katı ahşap iç marangozluğu zarif bir dokunuş katmaktadır.
Porselen seramikler oturma odasını, banyoyu, holü ve mutfağı süslerken, yerden ısıtma bu alanlarda sıcaklık ve konfor sağlar. Yatak odaları şık parke döşemeye sahiptir ve genel estetiği tamamlar. Her odada klima üniteleri, yıl boyunca hoş bir iç mekan ortamı sağlar. Ayrıca, her daire ek güvenlik ve konfor için yangın alarm sistemi ve video diyafonlarla donatılmıştır. Mekanlar 24 saat video gözetimi ve fiziksel güvenlik önlemleri ile ekstra korunmaktadır.
Daha fazla bilgi için bize şu adresten ulaşabilirsiniz: https://www.searealty.me/tr/iletişim

Detalji o nekretnini

ID oglasa
409767
Objavljeno
19.06.2025
Tip nekretnine

Stan

Kvadratura

62m²

Sobe

1

Kupatila

N/A

Lokacija

Dobrota

Dobrota, Kotor

Cijena

Na upit

Kreditni kalkulator

Parametri nekretnine

Cijena po m²: 3356.42 €

Učešće 41,620 €

10%50%
1%8%
5 god35 god

Rezultati kalkulacije

Mjesečna rata
1,009 €

240 rata ukupno

Iznos kredita
166,478 €
Učešće
41,620 €
Ukupna kamata
75,640 €
Ukupno plaćanje
242,118 €

Da li ispunjavate uslove za ovaj kredit?

Saznajte za manje od 1 minut — besplatno i bez obaveza

Popunjavanje traje manje od 1 minVaši podaci su zaštićeni
U saradnji saHipotekarna Banka

Napomena: Ova kalkulacija je informativna. Stvarni uslovi kredita mogu varirati u zavisnosti od banke, kreditnog rejtinga i drugih faktora. Konsultujte se sa bankom za tačne uslove.

Lokacija

Map preview

Prosječne cijene jednosobnih stanova - Dobrota

Dobrota
Kotor

Ova nekretnina je 22.49% veća od prosječne veličine jednosobnog stana na lokaciji Dobrota

Prosječna veličina: 51 m²

3,356 €
Prosječna godišnja cijena
+11%
Trend cijena (godišnje)
279
Dana na tržištu

regulatorne informacije

Agencija (posrednik)

SeaRealtor.com

Registarski broj

-

Lokacija

Kotor

Dobrota

Kvadratura

62m²

Struktura

1 Sobe

Tip nekretnine

Stan

Ove informacije su obavezne prema Zakonu o posredovanju u prometu i zakupu nepokretnosti Crne Gore. Svi posrednici moraju biti upisani u Registar posrednika koji vodi nadležno ministarstvo.

SeaRealtor.com

Slične nekretnine

Premium Stan in Dobrota

Prodaja, jednosoban stan, 51m², Dobrota, Kotor

193,800 €

Dobrota

1 soba 1 kupatilo 51
Prodaja, jednosoban stan, 51m², Dobrota, Kotor
Premium Kuća in Dobrota

Prodaja, kuća, 180m², Dobrota, Kotor

2,000.000 €

Dobrota

4 sobe 1 kupatilo 180
Prodaja, kuća, 180m², Dobrota, Kotor
Premium Stan in Dobrota

Prodaja, dvosoban stan, 51m², Dobrota, Kotor

214,990 €

Dobrota

2 sobe 1 kupatilo 51
Prodaja, dvosoban stan, 51m², Dobrota, Kotor
Premium Stan in Dobrota

Prodaja, jednosoban stan, 58m², Dobrota, Kotor

245,000 €

Dobrota

1 soba 0 58
Prodaja, jednosoban stan, 58m², Dobrota, Kotor
Premium Stan in Dobrota

Prodaja, dvosoban stan, 59m², Dobrota, Kotor

245,000 €

Dobrota

2 sobe 2 kupatila 59
Prodaja, dvosoban stan, 59m², Dobrota, Kotor
Verifikovan Premium Zemljište in Dobrota

Prodaja, plac, 1700m², Dobrota, Kotor

299,000 €

Dobrota

1700
Prodaja, plac, 1700m², Dobrota, Kotor
Premium Stan in Dobrota

Prodaja, dvosoban stan, 62m², Dobrota, Kotor

246,000 €

Dobrota

2 sobe 1 kupatilo 62
Prodaja, dvosoban stan, 62m², Dobrota, Kotor
Premium Stan in Dobrota

Prodaja, dvosoban stan, 80m², Dobrota, Kotor

270,000 €

Dobrota

2 sobe 1 kupatilo 80
Prodaja, dvosoban stan, 80m², Dobrota, Kotor
Premium Stan in Dobrota

Prodaja, dvosoban stan, 90m², Dobrota, Kotor

240,000 €

Dobrota

2 sobe 2 kupatila 90
Prodaja, dvosoban stan, 90m², Dobrota, Kotor
Premium Stan in Dobrota

Prodaja, dvosoban stan, 106m², Dobrota, Kotor

415,000 €

Dobrota

2 sobe 1 kupatilo 106
Prodaja, dvosoban stan, 106m², Dobrota, Kotor