
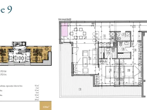
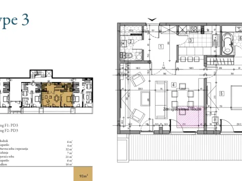
367,500 €
Prodaja, trosoban stan, 120m², Dobrota, Kotor
ID KO-07/06 Prostran stan sa pristupom bazenu u Kotoru, 50 m od mora, na prodaju Površina: 120 m² + 50 m² terasa Sprat: visoki 1 (direktan pristup bazenu) Spavaće sobe: 3 Kupatila: 2 Udaljenost od mor


















