
650,000 €
Prodaja, poslovni prostor, 325m², Inđija, Srbija
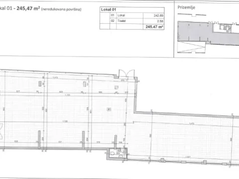
Prodajemo na TOP lokaciji lokal, površine 325m2. Lokal je višenamenski idealan za veće markete ili prodavnice, kancelarijski prostor. Ulaz sa ulice poseduje izlog kao i bočni ulaz pogodan za magacinsk