171,800 €
  • Prodaja, trosoban stan, 80m², Cerak, Beograd - image 1
  • Prodaja, trosoban stan, 80m², Cerak, Beograd - image 2
  • Prodaja, trosoban stan, 80m², Cerak, Beograd - image 3
  • Prodaja, trosoban stan, 80m², Cerak, Beograd - image 4
171,800 € (2,148 €/m²)
80 m²
3 Soba
1 Kupatilo

Prodaja, trosoban stan, 80m², Cerak, Beograd

Cerak, Beograd Srbija

Opis nekretnine

KOMFORAN TROSOBAN STAN SA DVE TERASE!

Cena: 171800€
Kontakt: +
Lokacija: Čukarica, Cerak
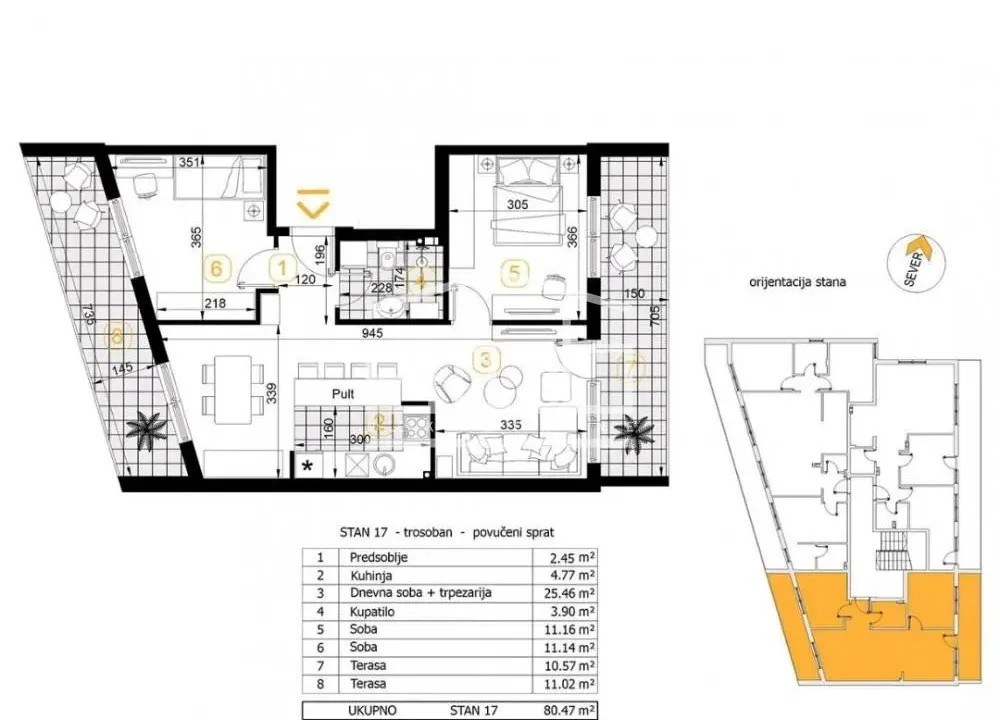
Površina: 80.48m2
Struktura: trosoban stan u čiju strukturu ulazi:
- predsoblje
- kuhinja
- dnevni boravak+ trpezarija
- kupatilo
- dve spavaće sobe
- dve terase
Ovaj prelep trosoban stan u novogradnji na Ceraku predstavlja idealno mesto za udoban i moderan život u mirnom okruženju. Smešten na poslednjem, povučenom spratu. Stan nudi ne samo izvanrednu privatnost, već i panoramski pogled na okolinu, čineći ga savršenim utočištem od gradske buke. Sa dve prostrane terase, ova nekretnina pruža obilje spoljnog prostora koji možete prilagoditi svojim potrebama – bilo da želite uživati u jutarnjoj kafi, organizovati druženje s prijateljima, ili jednostavno se opuštati u prirodi. Uz pažljivo osmišljen enterijer, svetle i prostrane prostorije, uz visoke standarde gradnje, ovaj stan je prava prilika za sve koji traže luksuzan životni prostor u srcu Beograda.
Ulaz u stan vodi kroz prostrani hodnik koji omogućava pristup svim delovima stana.
Dnevni boravak otvorenog koncepta ovog stana je srce doma, prostor koji spaja udobnost i funkcionalnost, stvarajući idealno okruženje za opuštanje i druženje. Sa velikim, panoramskim prozorima koji omogućavaju obilje prirodnog svetla. Ono što ovaj dnevni boravak čini zaista posebnim jeste izlaz na prvu terasu, koja pruža mogućnost da uživate u svežem vazduhu i prelepom pogledu na okolinu. Prostor je savršeno dizajniran za kreiranje različitih zona – od udobnog kutka za sedenje, do trpezarijskog dela za porodične obroke.
Kuhinja je moderna,prostrana sa visokokvalitetnom granitnom keramikom. U nastavku kuhinje je trpezarijski deo koji ima izlaz na drugu terasu, koja može biti savršeno mesto za opuštanje.
Spavaće sobe odišu udobnošću i privatnošću, sa toplim tonovima.Podovi su prekriveni hrastovim parketom prve klase.
Kupatilo je moderno opremljeno graniznom keramikom i sanitarijom najvišeg kvaliteta.Stan ima izlaz na dve izuzetno velike terase..
Da je reč o izuzetno kvalitetnoj gradnji, govori i to da stan poseduje kvalitetnu PVC fasadnu stolariju sa niskoemisionim staklima, sa komarnicima i aluminijumskim roletnama sa elektromotorima, inverter klima - split sistem, kvalitetna sobna i ulazna vrata,centralno grejanje na gas sa kontrolom potrošnje, aluminijumski radiatori sa ugradnjom u podu,spoljni zidovi sa maksimalnom termoizolacijom.
Objekat je opremljen najsavremenijim putničkim liftom kojim vlasnici stanova mogu doći do garažnih parking mesta koji su deo objekta.Dodatna bezbednost je garantovana kontrolisanim pristupom zgrade, savremenim sigurnosnim sistemom i video nadzorom.
Odličan izbor za one koji žele da žive u mirnom delu Beograda, u modernoj i kvalitetno izgrađenoj nekretnini, sa sopstvenim dvorištem i svim potrebnim sadržajem u blizini. Idealno je za porodice, ali i za one koji žele udoban i funkcionalan prostor u urbanom okruženju.
Cena je izražena bez PDV-a. Agencijska

Detalji o nekretnini

ID oglasa
361348
Objavljeno
08.04.2025
Tip nekretnine

Stan

Kvadratura

80m²

Sobe

3

Kupatila

1

Lokacija

Cerak

Cerak, Beograd

Cena

171,800 €

2,148 € po m²

Kreditni kalkulator

Parametri nekretnine

Cena po m²: 2147.50 €

Učešće 34,360 €

10%50%
1%8%
5 god35 god

Rezultati kalkulacije

Mjesečna rata
833 €

240 rata ukupno

Iznos kredita
137,440 €
Učešće
34,360 €
Ukupna kamata
62,446 €
Ukupno plaćanje
199,886 €

Da li ispunjavate uslove za ovaj kredit?

Saznajte za manje od 1 minut — besplatno i bez obaveza

Popunjavanje traje manje od 1 minVaši podaci su zaštićeni
U saradnji saHipotekarna Banka

Napomena: Ova kalkulacija je informativna. Stvarni uslovi kredita mogu varirati u zavisnosti od banke, kreditnog rejtinga i drugih faktora. Konsultujte se sa bankom za tačne uslove.

Lokacija

Map preview

Prosečne cene trosobnih stanova - Beograd

Cerak
Beograd

Cena ove nekretnine je 5.96% niža od prosečne cene trosobnog stana na lokaciji Cerak

Prosečna cena: 2283.59 €/m²

Ova nekretnina je 4.97% veća od prosečne veličine trosobnog stana na lokaciji Cerak

Prosečna veličina: 76 m²

2,284 €
Prosečna godišnja cena
+17%
Trend cena (godišnje)
352
Dana na tržištu

regulatorne informacije

Agencija (posrednik)

Stub Nekretnine

Registarski broj

-

Lokacija

Beograd

Cerak

Kvadratura

80m²

Struktura

3 Sobe

Tip nekretnine

Stan

Ove informacije su obavezne prema Zakonu o posredovanju u prometu i zakupu nepokretnosti Crne Gore. Svi posrednici moraju biti upisani u Registar posrednika koji vodi nadležno ministarstvo.

SN

Stub Nekretnine

Slične nekretnine

Stan in Cerak

Prodaja, trosoban stan, 85m², Cerak, Beograd

143,000 €

Cerak

3 sobe 0 85
Prodaja, trosoban stan, 85m², Cerak, Beograd
Stan in Cerak

Prodaja, jednosoban stan, 21m², Cerak, Beograd

71,900 €

Cerak

1 soba 1 kupatilo 21
Prodaja, jednosoban stan, 21m², Cerak, Beograd
Stan in Cerak

Prodaja, stan, 124m², Cerak, Beograd

197,900 €

Cerak

5 soba 2 kupatila 124
Prodaja, stan, 124m², Cerak, Beograd
Stan in Cerak

Prodaja, četvorosoban stan, 113m², Cerak, Beograd

281,625 €

Cerak

4 sobe 3 kupatila 113
Prodaja, četvorosoban stan, 113m², Cerak, Beograd
Stan in Cerak

Prodaja, trosoban stan, 94m², Cerak, Beograd

260,000 €

Cerak

3 sobe 94
Prodaja, trosoban stan, 94m², Cerak, Beograd
Stan in Cerak

Prodaja, trosoban stan, 102m², Cerak, Beograd

220,000 €

Cerak

3 sobe 1 kupatilo 102
Prodaja, trosoban stan, 102m², Cerak, Beograd
Stan in Cerak

Prodaja, četvorosoban stan, 96m², Cerak, Beograd

249,900 €

Cerak

4 sobe 2 kupatila 96
Prodaja, četvorosoban stan, 96m², Cerak, Beograd
Stan in Cerak

Prodaja, trosoban stan, 76m², Cerak, Beograd

149,900 €

Cerak

3 sobe 0 76
Prodaja, trosoban stan, 76m², Cerak, Beograd
Stan in Cerak

Prodaja, trosoban stan, 76m², Cerak, Beograd

145,000 €

Cerak

3 sobe 1 kupatilo 76
Prodaja, trosoban stan, 76m², Cerak, Beograd
Stan in Cerak

Prodaja, četvorosoban stan, 90m², Cerak, Beograd

225,000 €

Cerak

4 sobe 2 kupatila 90
Prodaja, četvorosoban stan, 90m², Cerak, Beograd