66,420 €
66,420 € (1,356 €/m²)
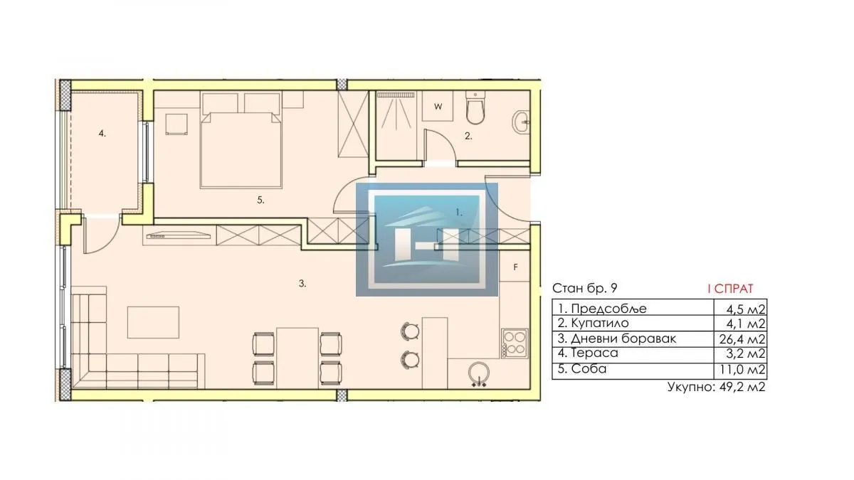
49 m²
1 Soba

Prodaja, jednosoban stan, 49m², Centar, Jagodina

Centar, Jagodina Srbija

Opis nekretnine

Započeta je izgradnja nove stambene zgrade koja objedinjuje moderan dizajn, funkcionalnost i udobnost savremenog života.
U ponudi su stanovi različitih struktura i kvadratura – od 31,6m² do 67,4m², idealni kako za mlade parove i pojedince, tako i za porodice koje žele mir, sigurnost i kvalitetan dom.

Cena: 1.350 €/m² sa PDV-om
Parking mesto uključeno u cenu!
Mogućnost kupovine garažnog mesta u podrumu zgrade!

KVALITET I SIGURNOST KOJI SE OSEĆAJU

Gradnja se izvodi po najvišim standardima:
• Termo blok + stiropor izolacija 10cm – odlična toplotna i zvučna zaštita
• Podno grejanje – keramika na podovima za savršen komfor
• Grejanje na gas za stanove preko 50m², kotao na struju za manje stanove
• Ugrađen vodomer i visoka energetska efikasnost
• Klima uređaj u svakom stanu
• Lift u zgradi
• PVC stolarija vrhunskog kvaliteta i alu roletne sa elektro podizačima

LOKACIJA KOJA NUDI MIR I BLIZINU SVEGA

Zgrada se nalazi u mirnom delu grada, savršenom za porodičan život, a ipak na samo 500 metara od centra.
Bolnica, škole, marketi, apoteke, pošta i svi bitni sadržaji nalaze se u neposrednoj blizini – sve što vam je potrebno, dostupno je pešice.

ZAŠTO OVAJ PROJEKAT?

✔ Pouzdan investitor sa iskustvom
✔ Izuzetna energetska efikasnost i niski troškovi održavanja
✔ Parking mesto obezbeđeno uz svaki stan, osim za garsonjere
✔ Mogućnost kupovine garaže
✔ Savršena kombinacija kvaliteta, lokacije i cene
✔ Odlična investicija – i za život i za izdavanje

Useljenje po završetku radova, a rezervacije su već u toku!
Ne čekajte – rezervišite svoj novi dom na vreme!

064/8-/8-/8-222-441

Detalji o nekretnini

ID oglasa
484564
Objavljeno
24.10.2025
Ažuriran
04.03.2026
Tip nekretnine

Stan

Kvadratura

49m²

Sobe

1

Kupatila

0

Lokacija

Centar

Centar, Jagodina

Cena

66,420 €

1,356 € po m²

Kreditni kalkulator

Parametri nekretnine

Cena po m²: 1355.51 €

Učešće 13,284 €

10%50%
1%8%
5 god35 god

Rezultati kalkulacije

Mjesečna rata
322 €

240 rata ukupno

Iznos kredita
53,136 €
Učešće
13,284 €
Ukupna kamata
24,142 €
Ukupno plaćanje
77,278 €

Da li ispunjavate uslove za ovaj kredit?

Saznajte za manje od 1 minut — besplatno i bez obaveza

Popunjavanje traje manje od 1 minVaši podaci su zaštićeni
U saradnji saHipotekarna Banka

Napomena: Ova kalkulacija je informativna. Stvarni uslovi kredita mogu varirati u zavisnosti od banke, kreditnog rejtinga i drugih faktora. Konsultujte se sa bankom za tačne uslove.

Lokacija

Map preview

Prosečne cene jednosobnih stanova - Centar

Centar
Jagodina

Cena ove nekretnine je 3.1% viša od prosečne cene jednosobnog stana na lokaciji Centar

Prosečna cena: 1314.76 €/m²

Ova nekretnina je 16.18% veća od prosečne veličine jednosobnog stana na lokaciji Centar

Prosečna veličina: 42 m²

1,315 €
Prosečna godišnja cena
+12%
Trend cena (godišnje)
155
Dana na tržištu

regulatorne informacije

Agencija (posrednik)

Heroldo Nekretnine

Registarski broj

-

Lokacija

Jagodina

Centar

Kvadratura

49m²

Struktura

1 Sobe

Tip nekretnine

Stan

Ove informacije su obavezne prema Zakonu o posredovanju u prometu i zakupu nepokretnosti Crne Gore. Svi posrednici moraju biti upisani u Registar posrednika koji vodi nadležno ministarstvo.

HN

Heroldo Nekretnine

Slične nekretnine

Stan in Centar

Prodaja, jednosoban stan, 41m², Centar, Jagodina

64,000 €

Centar

1 soba 0 41
Prodaja, jednosoban stan, 41m², Centar, Jagodina
Stan in Centar

Prodaja, garsonjera, 20m², Centar, Jagodina

29,000 €

Centar

0 soba 0 20
Prodaja, garsonjera, 20m², Centar, Jagodina
Stan in Centar

Prodaja, dvosoban stan, 53m², Centar, Jagodina

59,000 €

Centar

2 sobe 0 53
Prodaja, dvosoban stan, 53m², Centar, Jagodina
Stan in Centar

Prodaja, jednosoban stan, 53m², Centar, Jagodina

82,150 €

Centar

1 soba 0 53
Prodaja, jednosoban stan, 53m², Centar, Jagodina
Stan in Centar

Prodaja, dvosoban stan, 51m², Centar, Jagodina

68,850 €

Centar

2 sobe 0 51
Prodaja, dvosoban stan, 51m², Centar, Jagodina
Stan in Centar

Prodaja, dvosoban stan, 67m², Centar, Jagodina

90,990 €

Centar

2 sobe 0 67
Prodaja, dvosoban stan, 67m², Centar, Jagodina
Stan in Centar

Prodaja, dvosoban stan, 67m², Centar, Jagodina

90,990 €

Centar

2 sobe 0 67
Prodaja, dvosoban stan, 67m², Centar, Jagodina
Poslovni prostor in Centar

Prodaja, poslovni prostor, 24m², Centar, Jagodina

14,000 €

Centar

24
Prodaja, poslovni prostor, 24m², Centar, Jagodina
Stan in Centar

Prodaja, stan, 55m², Centar, Jagodina

63,250 €

Centar

0 55
Prodaja, stan, 55m², Centar, Jagodina
Stan in Centar

Prodaja, dvosoban stan, 63m², Centar, Jagodina

66,000 €

Centar

2 sobe 0 63
Prodaja, dvosoban stan, 63m², Centar, Jagodina