VETERNIČKA RAMPA, 45m2, DVOSOBAN
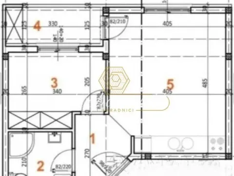
Prodaje se dvosoban stan u tek izgrađenoj zgradi. Odličnog je rasporeda, iz hodnika se ide u sve prostorije. Poseduje prostranu dnevnu sobu sa predviđenim mestom za kuhinju, spavaću sobu, kupatilo i terasu. Zgrada je kvalitetne gradnje, na podovima tarket i pločice prve klase, podno je grejanje na toplotne pumpe tako da su troškovi niski. Zgrada je na mirnoj i porodičnoj lokaciji, iza i ispred zgrade su dvorišta pogodna za decu, dosta slobodnog parkinga u okruženju. U blizini sve potrebno za život: autobusko stajalište, apoteku, prodavnica, pekara. Stan je odmah useljiv.
Cena 75.000eura + 3% posrednička naknada.
Za više informacija, možete nas kontaktirati na broj 06*/****-*** ili 06*/****-***, agencija za nekretnine "Šćepanović i saradnici", upisana u Registar posrednika pod brojem 1573, Bulevar oslobođenja 78, Novi Sad.
ID oglasa: 42858.Stan
45m²
2
1
Veternička rampa
Veternička rampa, Novi Sad Sve Podlokacije
74,999 €
1,667 € po m²
Agencija
Šćepanović NekretnineCena po m²: 1666.64 €
Učešće 15,000 €
Da li ispunjavate uslove za ovaj kredit?
Saznajte za manje od 1 minut — besplatno i bez obaveza

Napomena: Ova kalkulacija je informativna. Stvarni uslovi kredita mogu varirati u zavisnosti od banke, kreditnog rejtinga i drugih faktora. Konsultujte se sa bankom za tačne uslove.
Cena ove nekretnine je 19.48% niža od prosečne cene dvosobnog stana na lokaciji Veternička rampa
Prosečna cena: 2069.86 €/m²
Ova nekretnina je 4.61% manja od prosečne veličine dvosobnog stana na lokaciji Veternička rampa
Prosečna veličina: 47 m²
Agencija (posrednik)
Šćepanović Nekretnine
Registarski broj
-
Lokacija
Novi Sad Sve Podlokacije
Veternička rampa
Kvadratura
45m²
Struktura
2 Sobe
Tip nekretnine
Stan
Ove informacije su obavezne prema Zakonu o posredovanju u prometu i zakupu nepokretnosti Crne Gore. Svi posrednici moraju biti upisani u Registar posrednika koji vodi nadležno ministarstvo.
Posjedujte ovu nekretninu već od
Fiksne kamate od: 4%
Da li ispunjavate uslove za ovaj kredit?
Saznajte za manje od 1 minut — besplatno i bez obaveza
U saradnji sa

Veternička rampa
Veternička rampa
Veternička rampa
Veternička rampa
Veternička rampa
Veternička rampa
Veternička rampa
Veternička rampa
Veternička rampa
Veternička rampa