
87,550 €
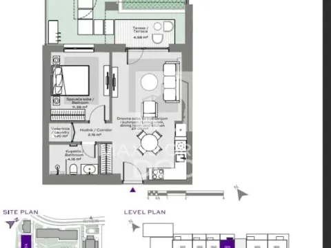
Prodaja, dvosoban stan, 47m², Novo naselje, Novi Sad
Oglašavamo prodaju odmah useljivog i kompletno renoviranog dvosobnog stana od 47m2 na Novom naselju. Stan se nalazi na drugom spratu u zgradi bez lifta, poseduje dnevnu sobu sa kuhinjom i...



















