
300,000 €
Prodaja, dvosoban stan, 50m², Stari Grad, Beograd
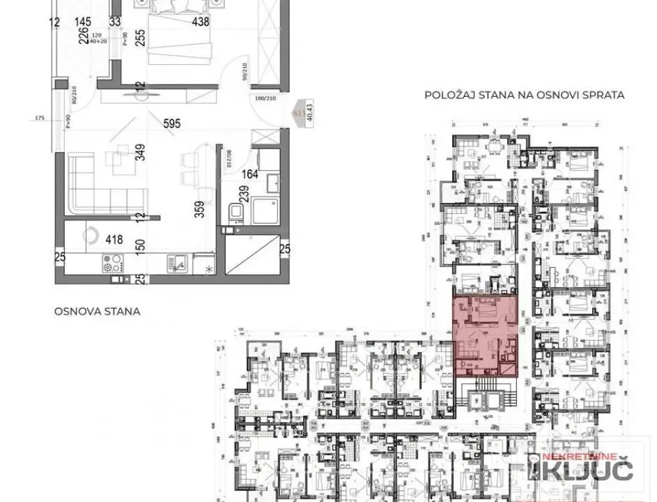
Na prodaju kompletno renoviran, lux stan. Idealan za poslovni prostor. Ima hodnik, tri prostorije, kupatilo, pripadajući podrum. Prozori velike sobe gledaju ka ulici. Nalazi se blizu Trga Republike. U


















