
117,071 €
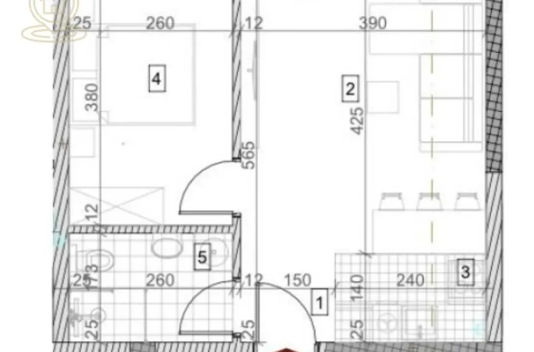
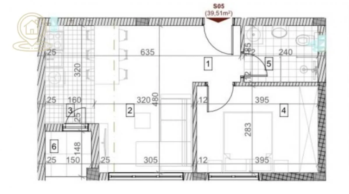
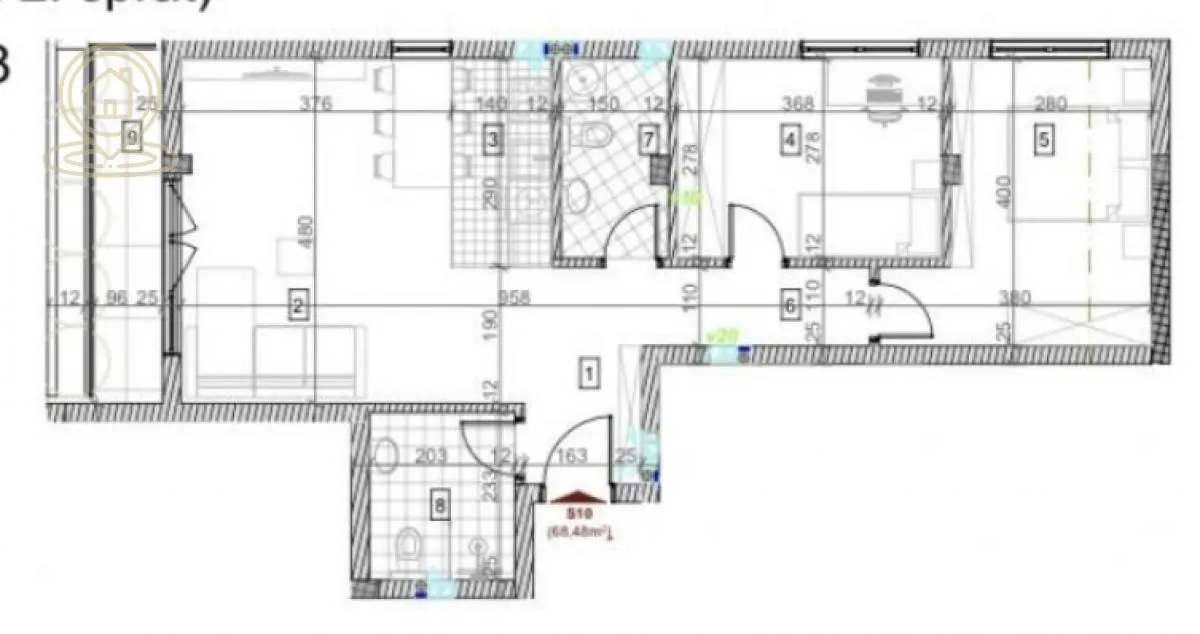
Prodaja, dvosoban stan, 45m², Telep, Novi Sad Sve Podlokacije
U ponudi je prodaja stanova u novogradnji na Telepu, površine od 29 m² do 85 m², na odličnoj lokaciji u mirnom i zelenom delu Novog Sada. Ovaj moderan stambeni kompleks predstavlja vrhunski kvalitet g


















