Exceptional investment opportunity in Reževići, one of the most prestigious locations on the Budva Riviera.
This spacious plot of 4660m² offers a breathtaking panoramic view of the Adriatic Sea and surrounding mountains.
The land has an asphalted access road, with electricity and water available nearby, ensuring easy development conditions.
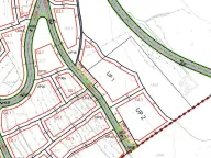
Urban Plot 1:
Construction of one building permitted
Gross building area (BRGP): approx. 490m²
Building footprint: 190m²
Construction index: 0.44
Floors: Basement + Ground floor + 1st floor (S+P+1)
Urban Plot 2:
Construction of two buildings permitted
Gross building area (BRGP): 575m²
Building footprint: 230m²
Construction index: 0.43
Floors: Basement + Ground floor + 1st floor (S+P+1)
Land lot
4660m²
N/A
N/A
Reževići
Reževići, Budva
Upon request
Agency
Adria Stone

Price per m²: 53.65 €
Down payment 50,000 €
Note:
This calculation is for informational purposes only. Actual loan terms may vary depending on the bank, credit rating, and other factors. Please consult your bank for exact conditions.
Agency (intermediary)
Adria Stone
Registration number
50635377
Location
Budva
Reževići
Area
4660m²
Structure
N/A
Property Type
Land lot
This information is mandatory under the Law on Mediation in the Sale and Lease of Real Estate of Montenegro. All intermediaries must be registered in the Register of Intermediaries maintained by the competent ministry.
Reževići
Reževići
Reževići
Reževići
Reževići
Reževići
Reževići
Reževići
Reževići
Reževići