
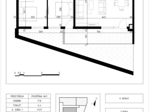
124,000 €
Prodaja, jednosoban stan, 41m², Zabjelo, Podgorica
Prodaje se jednosoban stan na Zabjelu. Stan se nalazi u zgradi koju je gradio Kips, ima 41m2 i nalazi se na 4. ujedno i poslednjem spratu. Stan posjeduje parking mjesto pod rampom i prodaje se namjest


















