
113,300 €
Prodaja, jednosoban stan, 42m², Rotkvarija, Novi Sad Sve Podlokacije
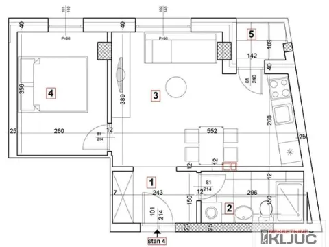
Oglašavamo prodaju jednoiposobnog stana u novogradnji od 42m2 na Rotkvariji. Stan se nalazi na prvom spratu u zgradi sa liftom, poseduje predsoblje, dnevnu sobu, odvojenu kuhinju i trpezariju, kupatil


















