
87,000 €
Prodaja, jednosoban stan, 29m², Stari Aerodrom, Podgorica
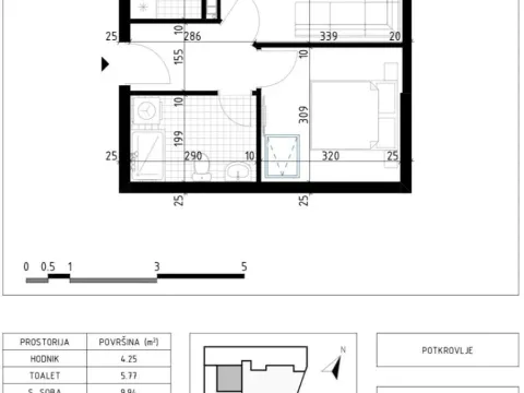
Na prodaju garsonjera – 29m², prizemlje Prodaje se kompletno nameštena garsonjera od 29 kvadrata, u prizemlju zgrade. Stan je veoma praktičan i funkcionalan, odmah useljiv, sa svim papirima urednim (1
Mirsad Zabeli
Oglašivač


















