
650,000 €
Sale, four bedroom apartment, 131m², Vračar Centar, Vračar Sve Podlokacije
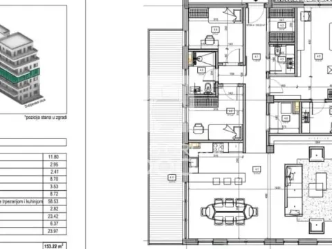
MAXIS GROUP DOO-Agencija za nekretnine-BROJ U REGISTRU POSREDNIKA 1850 Luksuzan Četvorosoban Stan na Vračaru, Blizu Hrama Tip: Četvorosoban stan, 131 m² Sprat: Drugi sprat u ekstra luksuznoj zgradi, o
















