
4,510 €
Rent, office space, 410m², Zemun Gornji Grad, Zemun Sve Podlokacije
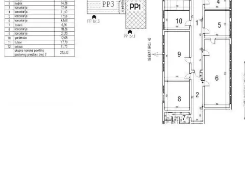
Zemun, Gornji grad - Cara Dušana poslovni prostor, 410m2, terasa, 2/3, EG, telefon, interfon, parking Višenamenski poslovni prostor, na odličnoj lokaciji u Zemunu. Sastoji se od deset kancelarija i po








