
66,420 €
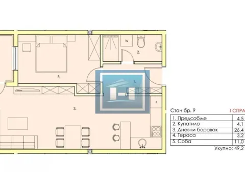
Sale, one bedroom apartment, 49m², Centar, Jagodina
EKSKLUZIVNA NOVOGRADNJA – POVRAĆAJ PDV-a! Tražite savršeno mesto za život ili sigurnu investiciju? Predstavljamo vam modernu zgradu u izgradnji, na izuzetnoj lokaciji – blizu centra, a ipak uvučena od


















