Registered apartment for sale, 49.5 m2, Patrisa Lumumbe 22, Karaburma (Belgrade).
Price: 169,000 EUR.
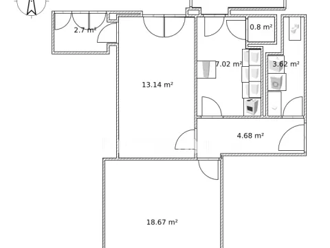
Structure: 2.5 rooms, 1 bathroom, high ground floor in a building with 4 floors.
Two rooms have direct Danube view.
Two balconies (one enclosed and insulated).
Heating: TA storage heaters + AC. Hot water: electric boiler.
Optical internet, security door, video intercom, storage/basement.
Floor plan areas (m2): living room 18.67, bedroom 13.14, kitchen 7.02, hallway 4.68, bathroom 3.62, balcony/loggia 5.76, enclosed balcony 2.70, pantry 0.80.
Contact: +381 61 6654 895 (WhatsApp/Viber).
Apartment
50m²
1
1
Karaburma
Karaburma, Palilula Sve Podlokacije
169,000 €
3,380 € per m²
Price per m²: 3380.00 €
Down payment 33,800 €
Do you qualify for this loan?
Find out in less than 1 minute — free and with no obligations

Note: This calculation is for informational purposes only. Actual loan terms may vary depending on the bank, credit rating, and other factors. Please consult your bank for exact conditions.
This property's price is 4.71% higher than the average price of a single bedroom apartment in Palilula Sve Podlokacije
Average price: 3228.06 €/m²
This property is 25% larger then the average size of a single bedroom apartment in Palilula Sve Podlokacije
Average size: 40 m²
Oliver Vignjevic
Own this property starting from
Fixed rate from: 4%
Do you qualify for this loan?
Find out in less than 1 minute — free and with no obligations
In partnership with

Karaburma
Karaburma
Karaburma
Karaburma
Karaburma
Karaburma
Karaburma
Karaburma
Karaburma
Karaburma
Oliver Vignjevic