
147,090 €
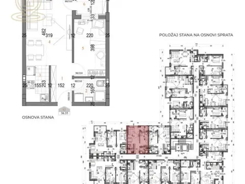
Sale, two bedroom apartment, 51m², Grbavica, Novi Sad Sve Podlokacije
Pravi porodični stan na najtraženijoj lokaciji, Grbavica, Bulevar Cara Lazara preko puta Doma zdravlja.Nalazi se na petom ali ne i poslednjem spratu stambene zgrade s liftom tako da imate prelep pogle


















