Apartment
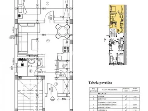
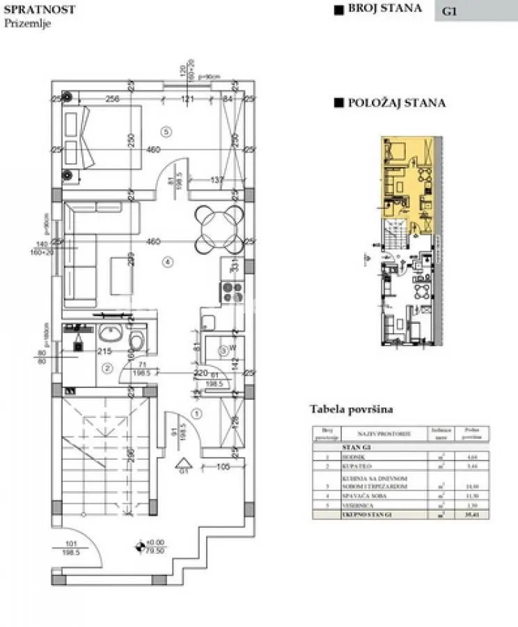
38m²
1
0
Adice
Adice, Novi Sad Sve Podlokacije
66,960 €
1,762 € per m²
Agency
Status NekretninePrice per m²: 1762.11 €
Down payment 13,392 €
Do you qualify for this loan?
Find out in less than 1 minute — free and with no obligations

Note: This calculation is for informational purposes only. Actual loan terms may vary depending on the bank, credit rating, and other factors. Please consult your bank for exact conditions.
This property's price is 12.24% lower than the average price of a single bedroom apartment in Adice
Average price: 2007.93 €/m²
This property is 5.14% larger then the average size of a single bedroom apartment in Adice
Average size: 36 m²
Agency (intermediary)
Status Nekretnine
Registration number
182
Location
Novi Sad Sve Podlokacije
Adice
Area
38m²
Structure
1 Rooms
Property Type
Apartment
This information is mandatory under the Law on Mediation in the Sale and Lease of Real Estate of Montenegro. All intermediaries must be registered in the Register of Intermediaries maintained by the competent ministry.
Own this property starting from
Fixed rate from: 4%
Do you qualify for this loan?
Find out in less than 1 minute — free and with no obligations
In partnership with

Adice
Adice
Adice
Adice
Adice
Adice
Adice
Adice
Adice
Adice