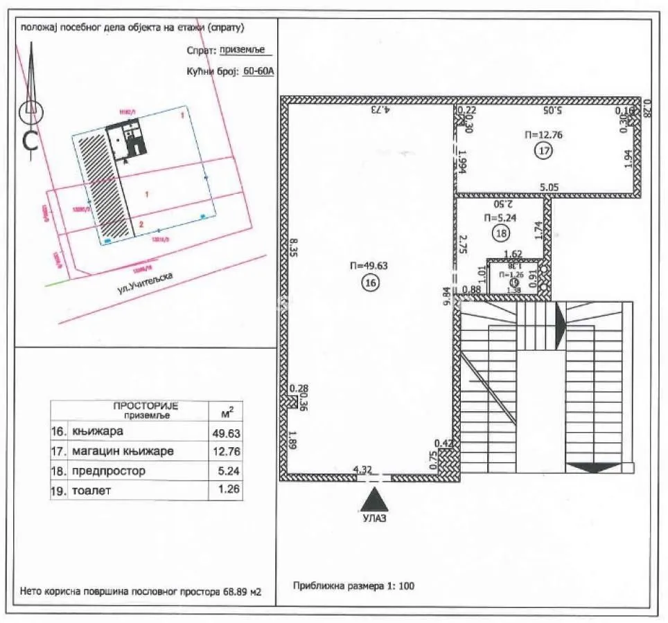
Office space
69m²
2
N/A
Zvezdara Sve Podlokacije
Zvezdara Sve Podlokacije, Beograd
125,000 €
1,812 € per m²
Agency
Status NekretninePrice per m²: 1811.59 €
Down payment 25,000 €
Do you qualify for this loan?
Find out in less than 1 minute — free and with no obligations

Note: This calculation is for informational purposes only. Actual loan terms may vary depending on the bank, credit rating, and other factors. Please consult your bank for exact conditions.
Agency (intermediary)
Status Nekretnine
Registration number
182
Location
Beograd
Zvezdara Sve Podlokacije
Area
69m²
Structure
2 Rooms
Property Type
Office space
This information is mandatory under the Law on Mediation in the Sale and Lease of Real Estate of Montenegro. All intermediaries must be registered in the Register of Intermediaries maintained by the competent ministry.
Own this property starting from
Fixed rate from: 4%
Do you qualify for this loan?
Find out in less than 1 minute — free and with no obligations
In partnership with

Bulbulder
Zvezdara Sve Podlokacije
Uciteljsko Naselje
Bulbulder
Cvetanova Ćuprija
Cvetanova Ćuprija
Lion
Gradska Bolnica
Severni Bulevar
Zvezdara Sve Podlokacije