
88,990 €
Sale, studio apartment, 31m², Telep, Novi Sad Sve Podlokacije
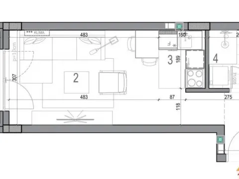
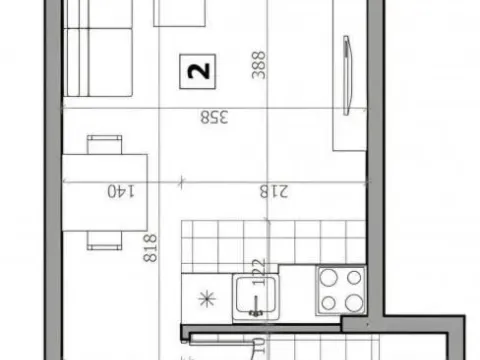
Prodaje se garsonjera u NOVOM SADU, TELEP površine 31m2. Stan je u izgradnji. Cena stana sa pdv. Renomiran investitor. Nalazi se na odličnoj lokaciji, odlično povezan sa Limanima i ostalim delovima gr


















