Apartment
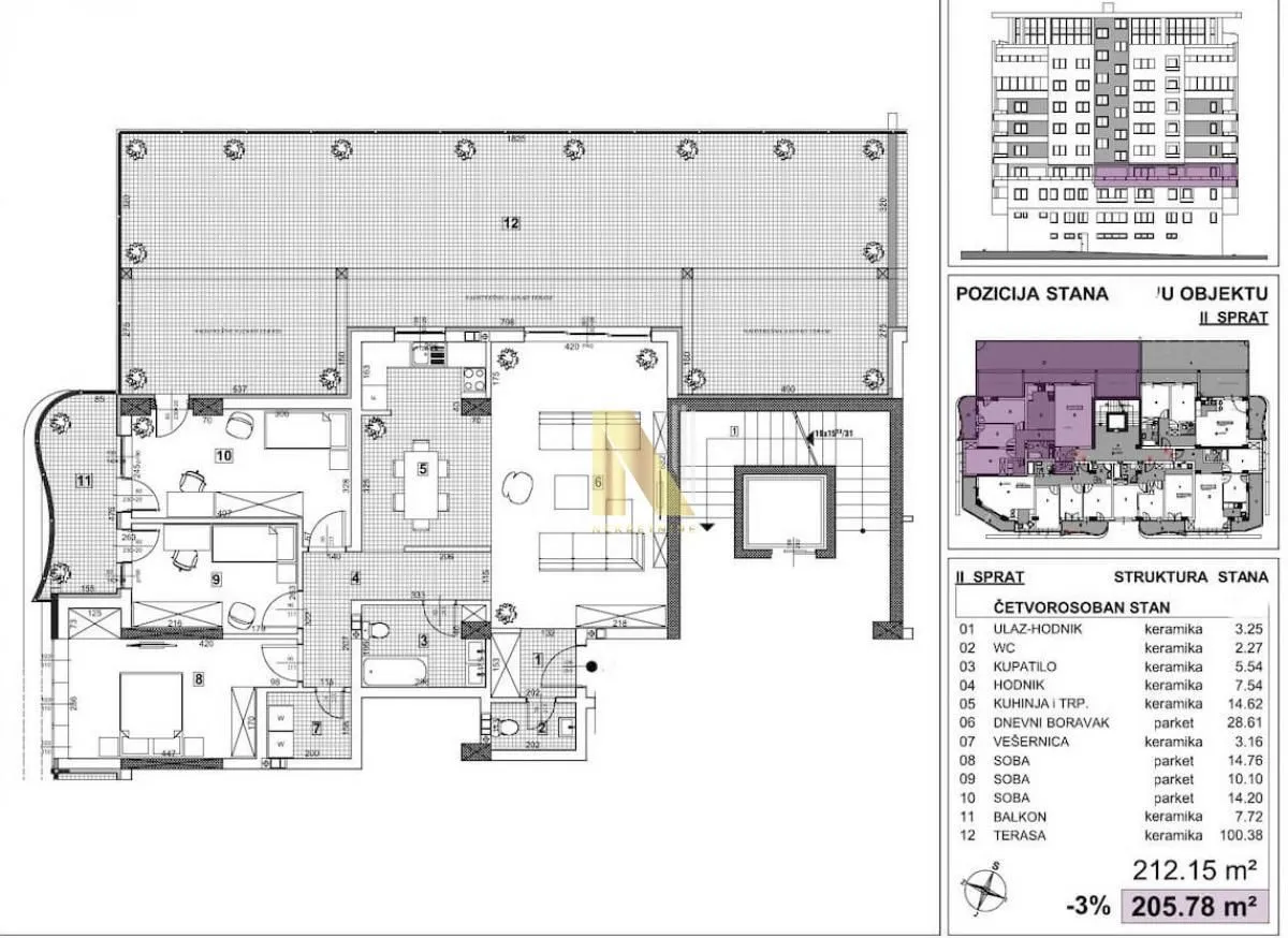
210m²
4
0
Telep
Telep, Novi Sad Sve Podlokacije
Upon request
Agency
N NEKRETNINEPrice per m²: 2412.55 €
Down payment 101,327 €
Do you qualify for this loan?
Find out in less than 1 minute — free and with no obligations

Note: This calculation is for informational purposes only. Actual loan terms may vary depending on the bank, credit rating, and other factors. Please consult your bank for exact conditions.
This property is 120.65% larger then the average size of a four bedroom apartment in Telep
Average size: 95 m²
Agency (intermediary)
N NEKRETNINE
Registration number
1405
Location
Novi Sad Sve Podlokacije
Telep
Area
210m²
Structure
4 Rooms
Property Type
Apartment
This information is mandatory under the Law on Mediation in the Sale and Lease of Real Estate of Montenegro. All intermediaries must be registered in the Register of Intermediaries maintained by the competent ministry.
Own this property starting from
Fixed rate from: 4%
Do you qualify for this loan?
Find out in less than 1 minute — free and with no obligations
In partnership with

Telep
Telep
Telep
Telep
Telep
Telep
Telep
Telep
Telep
Telep