
320,000 €
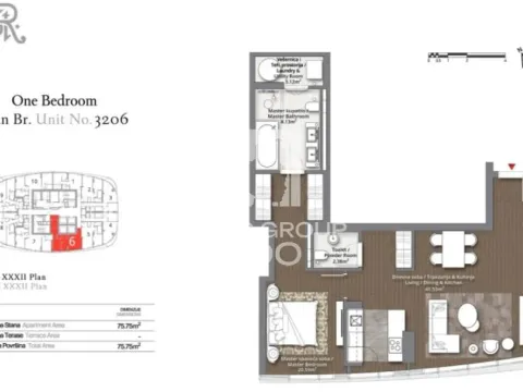
Prodaja, četvorosoban stan, 88m², Trošarina, Voždovac Sve Podlokacije
Prodajemo četvorosoban, moderno opremljen stan u okviru luksuznog kompleksa Park Vila Residence, na atraktivnoj lokaciji Voždovac - Trošarina. Stan se nalazi na četvrtom spratu zgrade novogradnje i pr


















